imovina.net Nekretnine oglasi, vesti i edukacije

Prodaja, dvoiposoban stan, Beograd, Zemun, Zemun Naselje Sutjeska

Ažurirano u 11:45h, dana 14.05.2026 god.

DVOIPOSOBAN STAN
172 480 EUR(2 738 EUR/m2)
  • $
  • din
grad Beograd, ZemunZemun Naselje Sutjeska, Pazovački put
Šifra oglasa: IMOVINA22372
Kvadratura m2: 63
Sprat: I / IV
Grejanje: Podno
Podeli
Prijavi
captcha

Specijalne osobine

u izgradnji, novogradnja, lift, garaža, parking mesto, interfon

Dodatne informacije

Zemun, Sutjeska - Pazovački put

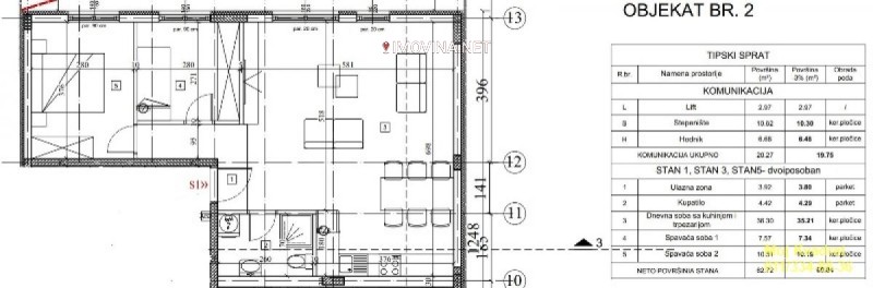
2.5, 63m2, podno grejanje/struja, inverter klima, lift, 1/4, interfon, parking, garaža

Na Pazovačkom putu gradi se zgrada sa tri sprata + povučeni sprat. Zgrada ima i garažu.

Stan je funkcionalan i sastoji se od velikog dnevnog boravka sa kuhinjom, spavaće sobe, hodnika i kupatila.

Stanovi su vrlo funkcionalni, grade se sa vrlo kvalitetnim materijalima - izolacija stiropor 10, španska keramika, PVC stolarija sa troslojnim staklom. Grejanje je podno (na struju) i svaki stan ima svoj kotao, kao i inverter klimu.

Predviđeno useljenje je maj 2026. godine, a predviđena izgrađenost kada će biti moguća kupovina preko stambenog kredita je oktobar 2025. godine.

U cenu stana je uračunat PDV.

Građevinska dozvola.

Agencijska provizija 2%

Agent: Mirela Perović 060/72-77-557 (licenca br.2566) R-ID: #22372, godina izgradnje 2025

Kontakt

Agencija: Moj kvadrat
Redni broj u Registru posrednika: 167
tel.:
011/334-88-36
Više nekretnina:
Adresa: Beograd, Beogradska br. 71

Pošaljite e-mail

Pogledaj lokaciju na mapi

Lokacija na mapi


Reklama
Baner
Baner
NEKRETNINE | SMEŠTAJ | KUPOVINA | IZNAJMLJIVANJE | ZAMENA | 3D TURA | INOSTRANSTVO
imovina.net logo Nekretnine oglasi, vesti i edukacije


2004-2026 ® Copyright Rezon Media Grup