imovina.net Nekretnine oglasi, vijesti i edukacije

Prodaja stanova Zagreb – višesoban stan, Gornji Grad - Medveščak

Ažurirano u 06:09h, dana 09.04.2026 god.

VIŠESOBAN
599 000 EUR(1 593 EUR/m2)
  • $
  • din
grad ZagrebGornji Grad - Medveščak, Pantovčak
Šifra oglasa: IMOVINA3074
Kvadratura m2: 376
Grijanje:
Podijeli
Prijavi
captcha

Specijalne osobine

Dodatne informacije

STAN, PRODAJA, ZAGREB, PANTOVČAK, 376 m2

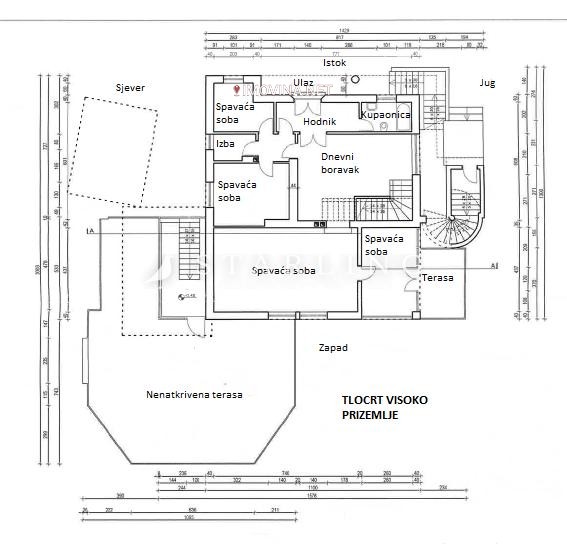
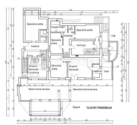
Prodaje se dvoetažni stan površine 376 m2 u visokom prizemlju zgrade bez lifta.

Zgrada je izgrađene 1937. godine, ima ukupno 2 kata te se nalazi u ulici Pantovčak.

Stan se sastoji od:

Prizemlja, površine 221 m2: dnevnog boravka, kuhinje, blagovaonice, 5 spavaćih soba, 2 kupaonice, wc-a, hodnika, 1 natkrivene terase i jedne nenatkrivene terase.

Visokog prizemlja, površine 155 m2: dnevnog boravka, 4 spavaće sobe, kupaonice, spremišta i 2 nenatkrivene terase.

Ispod stana se nalazi podrum površine 112 m2 koji pripada stanu.

U neposrednoj blizini nalazi se javni prijevoz, škola, trgovina i svi drugi bitni sadržaji.

Orijentacija: Sjever/Jug/Istok/Zapad
Grijanje: Centralno etažno plinsko
Parking: 3 osigurana parking mjesta u dvorištu kuće
Visina stropa: 2,6 m
Vlasništvo: uredno
Cijena: 700 000 eura







ID KOD AGENCIJE: 3074

STARLING d.o.o.
Mob: +385 91 602 9575
Tel: 01 779 23 10
E-mail: info@starling.hr
starling.hr, plac 359.00a

Kontakt

Agencija: Starling d.o.o.
Redni broj u Registru posrednika: 3/2019
tel.:
+38517792310
Više nekretnina ove agencije:
Adresa: Zagreb, Prilaz Gjure Deželića 75/1; Partizanska 13, Poreč; Vukovarska 17, Dubrovnik

Pošaljite e-mail

Pogledaj lokaciju na mapi

Lokacija na mapi


Pretraži oglase za nekretnine u Srbiji


NEKRETNINE | SMJEŠTAJ | KUPNJA | NAJAM | ZAMJENA | 3D TURA | INOZEMSTVO
imovina.net logo Nekretnine oglasi, vijesti i edukacije


2004-2026 ® Copyright Rezon Media Grup