imovina.net Nekretnine oglasi, vijesti i edukacije

Prodaja kuća Vodnjan, Vodnjan

Ažurirano u 06:09h, dana 07.10.2025 god.

KUĆA
749 000 EUR(3 901 EUR/m2)
  • $
  • din
grad VodnjanVodnjan,
Šifra oglasa: IMOVINA8250
Kvadratura m2: 192
Grijanje:
Podijeli
Prijavi
captcha

Specijalne osobine

Dodatne informacije

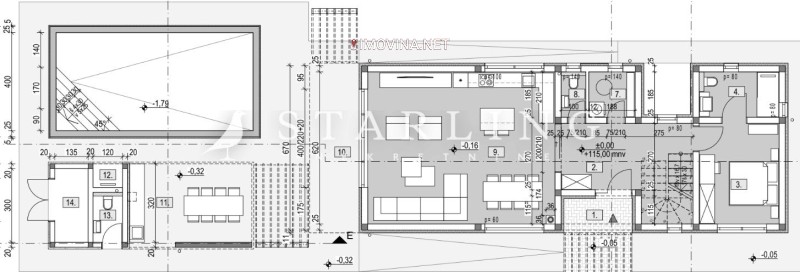
PRODAJA, LUKSUZNA KUĆA, VODNJAN, 192 m2

Prodaje se atraktivna moderna katnica smještena u elitnoj zoni San Antonio u Vodnjanu mirnom i prestižnom dijelu grada okruženom luksuznim vilama i maslinicima, idealnom za obiteljski život, odmor ili turističku investiciju.

Nekretnina se prostire na uređenoj parceli od 885 m², dok ukupna neto površina kuće iznosi 192 m², raspoređena na dvije etaže.

Prizemlje nudi prostran dnevni boravak otvorenog koncepta, povezan s blagovaonicom i modernom kuhinjom, iz kojeg se izlazi na natkrivenu terasu i bazen. Na istoj etaži nalazi se jedna spavaća soba s vlastitom kupaonicom, idealna za goste ili starije članove obitelji.

Na katu su smještene tri dodatne spavaće sobe, svaka s vlastitom kupaonicom i izlazom na natkrivene terase, koje pružaju pogled na zelenilo i okolni krajolik, osiguravajući privatnost i osjećaj luksuza.

Dvorište je pažljivo osmišljeno za uživanje na otvorenom. Dominira bazen dimenzija 8x4 m, uz koje se nalazi sunčalište i natkrivena terasa za opuštanje ili objedovanje. Poseban dodatak je ljetna kuhinja sa spremištem i vanjskim toaletom, savršena za pripremu jela na otvorenom i druženja s obitelji ili prijateljima.

U trenutnoj fazi gradnje, kupcu je omogućeno aktivno sudjelovanje u uređenju interijera i eksterijera uključujući izbor podnih i zidnih obloga, sanitarija, unutarnje stolarije, boja zidova i drugih detalja prema vlastitom ukusu. Idealna prilika za stvaranje doma po mjeri!

San Antonio je jedan od najtraženijih dijelova Vodnjana mirna, elitna mikrolokacija s odličnom prometnom povezanošću, svega nekoliko minuta vožnje do mora, Fažane i Pule. Okruženje čine nove vile, maslinici i netaknuta priroda, što ovoj nekretnini daje dodatnu vrijednost i ekskluzivnost.

Cijena uključuje PDV, prodavatelj je pravna osoba.

Cijena: 749.000 eura

ID KOD AGENCIJE: 8250

Dominik Jelenčić
Suradnik u procesu obuke
Mob: +385 91 445 5266
Tel: +385 99 5958 933
E-mail: dominik@starling.hr
https://starling.hr/, plac 885.00a

Kontakt

Agencija: Starling d.o.o.
Redni broj u Registru posrednika: 3/2019
tel.:
+38517792310
Više nekretnina ove agencije:
Adresa: Zagreb, Prilaz Gjure Deželića 75/1; Partizanska 13, Poreč; Vukovarska 17, Dubrovnik

Pošaljite e-mail

Pogledaj lokaciju na mapi

Lokacija na mapi


Pretraži oglase za nekretnine u Srbiji


NEKRETNINE | SMJEŠTAJ | KUPNJA | NAJAM | ZAMJENA | 3D TURA | INOZEMSTVO
imovina.net logo Nekretnine oglasi, vijesti i edukacije


2004-2026 ® Copyright Rezon Media Grup