imovina.net Nekretnine oglasi, vijesti i edukacije

Prodaja kuća Privlaka, Privlaka

Ažurirano u 06:07h, dana 09.04.2026 god.

KUĆA
366 488 EUR(3 332 EUR/m2)
  • $
  • din
grad PrivlakaPrivlaka,
Šifra oglasa: IMOVINA7734
Kvadratura m2: 110
Grijanje:
Podijeli
Prijavi
captcha

Specijalne osobine

Dodatne informacije

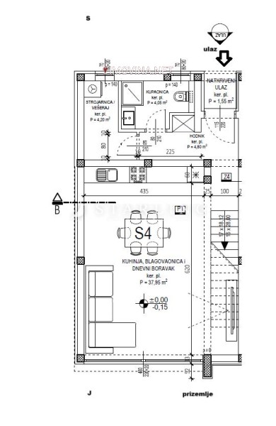
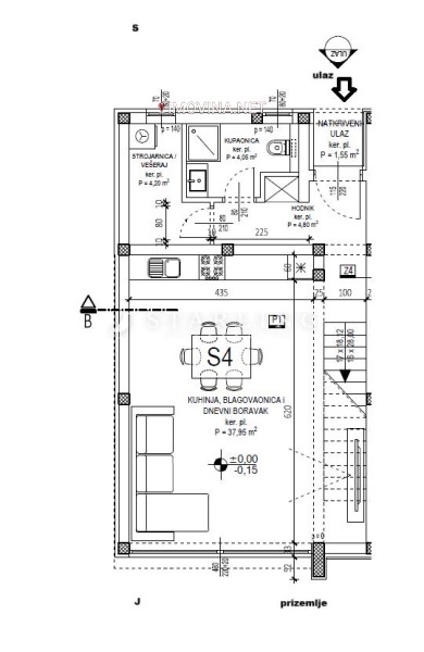
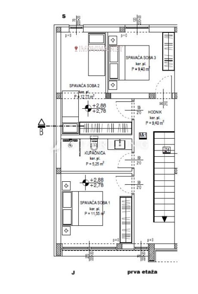
KUĆA S1, NOVOGRADNJA, PRODAJA, PRIVLAKA , PROJEKT A, 110 m2, 4-sobna

Prodaje se kuća u nizu stambene površine 100 m2 koja se proteže na dvije etaže. Projekt je napravljen od četiri kuće u nizu.

Kuća se sastoji od prizemlja s vrtom, prvog kata te dva vanjska parkirna mjesta što je u naravi 110m2.
- PRIZEMLJA: dnevni boravak s kuhinjom i blagovaonicom, spremišta, kupaonice, ulaznog hodnika te dvorišta.
- KATA: 3 spavaće sobe, kupaonica s wc-om, hodnik
- VRTA površine 51 m2 (obračunato po koeficijentu iznosi 5,10 m2)

Korisna površina samog stana je 100 m2, dok ukupna površina s vrtom i s jednim parkirnim mjestom obračunato po koeficijentima iznosi 110 m2.

Zbog visokokvalitetnih materijala objekt će ima A+ energetski razred.
Parkiranje je osigurano s jednim parkirnim mjestom.
Vanjska stolarija će biti 4S , kliznom stijenom i komarnicima. Ulazna vrata su protuprovalna aluminijska.

Od opreme izdvajamo video nadzor, grafitna fasada 12 cm debljine, dekorativnu led rasvjetu. Podno grijanje je provučeno u svim prostorijama.

U neposrednoj blizini nalaze se trgovina, vrtić, škola, javni prijevoz te se nalazi 500m od mora.


Orijentacija: jug- sjever
Grijanje: na struju, podno grijanje
Parking: dva vanjska parkirna mjesta
Cijena: 366,488.00 eura
Kapara: 10%

ID KOD AGENCIJE: 7734

Maja Žuža
Agent s licencom, suradnik
Mob: +385 91 4455 208
Tel: 01 779 23 10
E-mail: maja@starling.hr
starling.hr, plac 51.00a

Kontakt

Agencija: Starling d.o.o.
Redni broj u Registru posrednika: 3/2019
tel.:
+38517792310
Više nekretnina ove agencije:
Adresa: Zagreb, Prilaz Gjure Deželića 75/1; Partizanska 13, Poreč; Vukovarska 17, Dubrovnik

Pošaljite e-mail

Pogledaj lokaciju na mapi

Lokacija na mapi


Pretraži oglase za nekretnine u Srbiji


NEKRETNINE | SMJEŠTAJ | KUPNJA | NAJAM | ZAMJENA | 3D TURA | INOZEMSTVO
imovina.net logo Nekretnine oglasi, vijesti i edukacije


2004-2026 ® Copyright Rezon Media Grup