imovina.net Nekretnine oglasi, vijesti i edukacije

Ažurirano u 06:29h, dana 07.11.2025 god.

2-SOBAN
202 000 EUR(3 673 EUR/m2)
  • $
  • din
grad KastavBrestovice,
Šifra oglasa: IMOVINA2008-56
Kvadratura m2: 55
Grijanje:
Podijeli
Prijavi
captcha

Specijalne osobine

Dodatne informacije

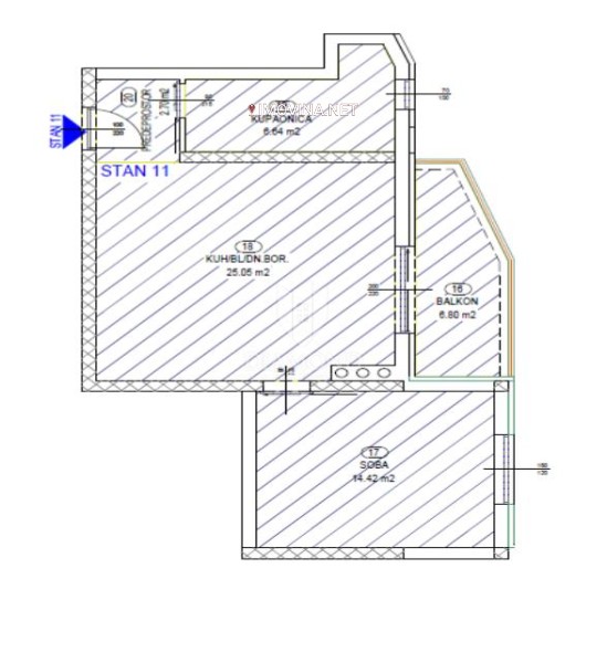
Rijeka, Kastav, jednosoban stan u novogradnji

Na prodaju je prostran dvosoban stan smješten u zgradi koja se trenutno gradi na prelijepom Kastvu. Ovaj moderno projektirani stan nudi udoban i praktičan prostor idealan za udoban život.

Stan se sastojati od prostrane dnevne sobe i kuhinje koja će biti povezana sa sobama, kupaonicom te predivnom lođom. Lođa pruža predivan pogled na okolicu i idealno će biti mjesto za opuštanje na otvorenom ili uživanje u jutarnjoj kavi.

Ovaj moderan stan će imati podno grijanje i klime u svim prostorijama koje će osigurati udobnost tijekom cijele godine.

Nova zgrada će nuditi razne pogodnosti za stanare, uključujući dva parking mjesta ispred zgrade, spremište veličine 8 m2, kao i blizinu svih bitnih sadržaja poput trgovina, škola i javnog prijevoza.

Investitor nudi mogućnost odabira završnog uređenja stanja, nemojte propustiti tu priliku.
Predviđeni rok useljenja je proljeće 2025. godine.




ID KOD AGENCIJE: 2008-56

Kontakt

Agencija: Diamond Real Estate
tel.:
0038552210824
Više nekretnina ove agencije:
Adresa: Poreč, Partizanska 5A
Telefon: 0038552210824,

Pošaljite e-mail

Pogledaj lokaciju na mapi

Lokacija na mapi


Pretraži oglase za nekretnine u Srbiji


NEKRETNINE | SMJEŠTAJ | KUPNJA | NAJAM | ZAMJENA | 3D TURA | INOZEMSTVO
imovina.net logo Nekretnine oglasi, vijesti i edukacije


2004-2026 ® Copyright Rezon Media Grup